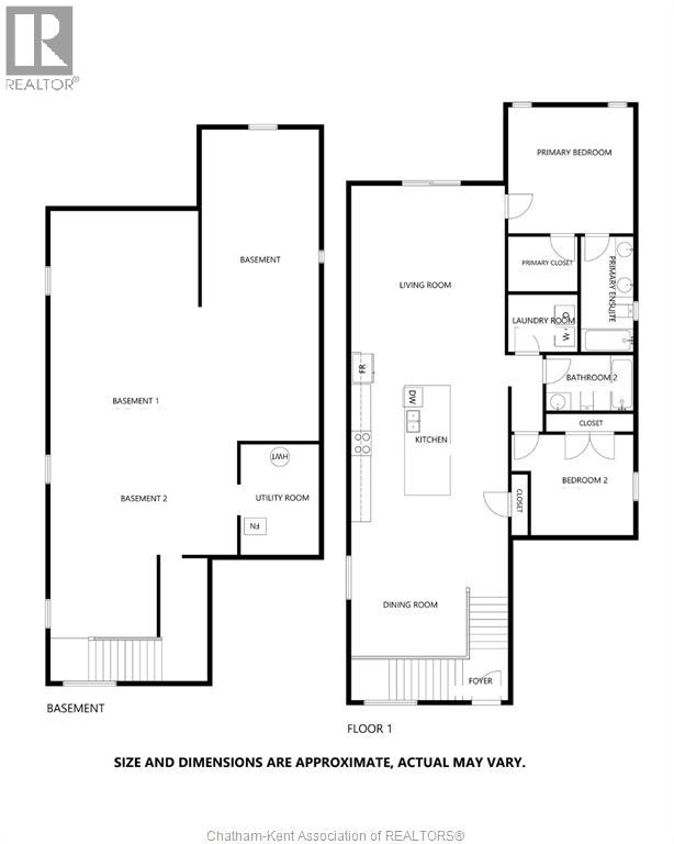
Located in The Landings, one of Chatham’s most desirable and family-friendly communities, 13 Baffin Way offers modern comfort, thoughtful design, and the assurance of Tarion warranty coverage until September 2030. Built in 2023, this contemporary raised ranch features an open concept main floor with cathedral ceilings and large windows that bring natural light into every room. The kitchen features a spacious center island, newer stainless steel appliances, soft-close cabinetry and seamlessly connects to the dining and living areas, creating an ideal setting for both everyday living and entertaining. The primary suite offers a walk-in closet and a private ensuite with a double vanity and a glass shower. A second bedroom and a full 4-piece bathroom provide versatility for guests, family, or a home office. The unfinished lower level presents exceptional potential to build equity - Featuring high ceilings, large windows that brighten the space, a roughed-in bathroom, and the opportunity to create two additional bedrooms, a full living area & a wet bar or kitchenette. Whether you want additional space, future rental potential, or long-term resale value, this lower level is a significant advantage. Outside, enjoy a fenced backyard and an attached 1.5-car garage. The home is located within a smaller and more exclusive subdivision that offers walking trails, green spaces, a neighbourhood park, and quiet streets with minimal traffic. It is a setting designed for families and anyone seeking a peaceful and connected lifestyle. The property is conveniently located near north side shopping, restaurants, schools, and provides quick access to Highway 40 and the 401. (id:4069)
Address
13 BAFFIN WAY
List Price
$499,900
Property Type
Single Family
Type of Dwelling
Single Family
Style of Home
Raised ranch
Transaction Type
Sale
Area
Ontario
Sub-Area
Chatham
Bedrooms
2
Bathrooms
2
Floor Area
2,714 Sq. Ft.
Lot Size
40.18 X 124.69 / 124.69 AC Sq. Ft.
Year Built
2023
MLS® Number
26004797
Listing Brokerage
RE/MAX PREFERRED REALTY LTD.
Postal Code
N7L0G5
Zoning
RL8
Features
Double width or more driveway, Concrete Driveway













































